Timber Frame Construction Model — ArchTech 207 (Design Technology 2), 2017
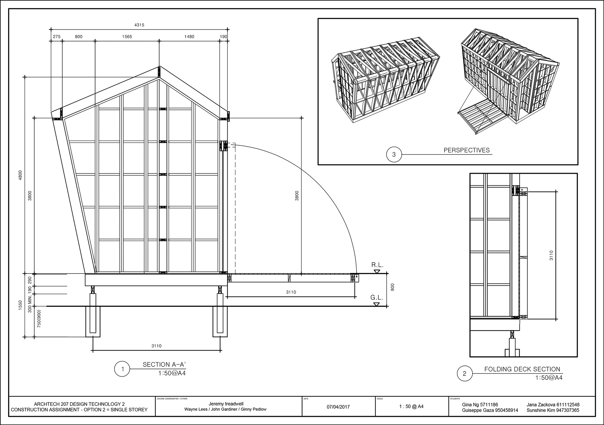
For ArchTech 207, our group designed and built a highly crafted sectional model of a timber-framed house on a suspended timber subfloor (piles, bearers and joists), developed against NZS 3604 and NZBC Clause E2 for a Very High Wind Zone.
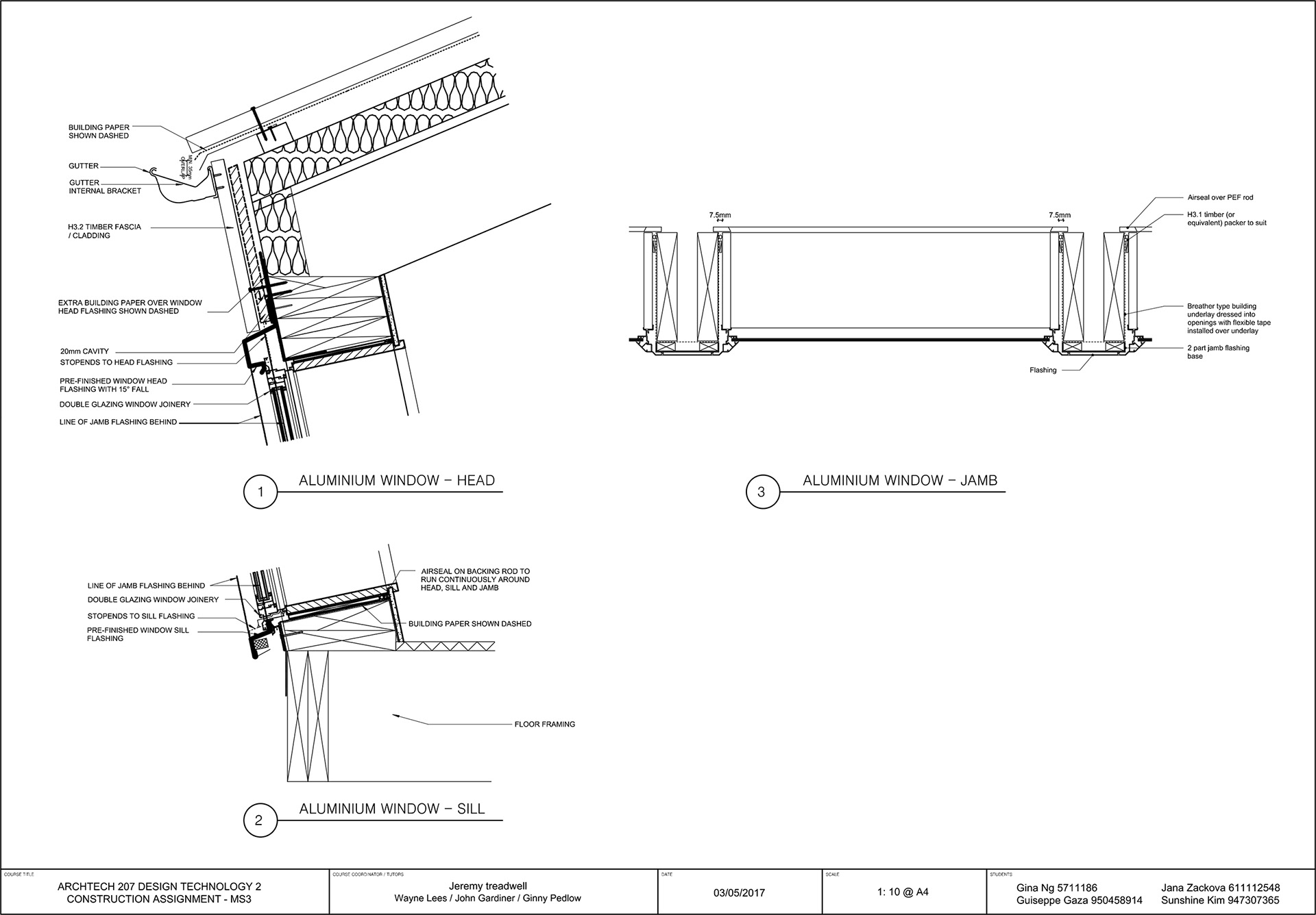
The project paired a 1:10 primary section with a 1:5 enlarged wall detail, deliberately cutting back linings to reveal the complete construction build-up—structure, wraps/underlays, flashings, cavities, insulation, interior linings, and water management—across a stepped exterior wall with multiple claddings.
Alongside compliance, the model was used as a critique of conventional NZ timber framing—questioning how structure and services are typically concealed within a thin wall cavity, and exploring alternative spatial/tectonic readings through section and detail.
Outputs included 1:50 sectional drawings and a folding deck section study as part of the technical resolution.
First Iteration — Two possible options:
Exploration of folding mechanisms:
Back to Top